Arcoasis

Project Description

Salinas, Puerto Rico

2020 (MArch)

Mixed-Use | Reporpuse | Conservation

M.Arch

AutoCAD | SketchUp | Adobe Suite

Location:

Year:

Type:

Role:

Softwares

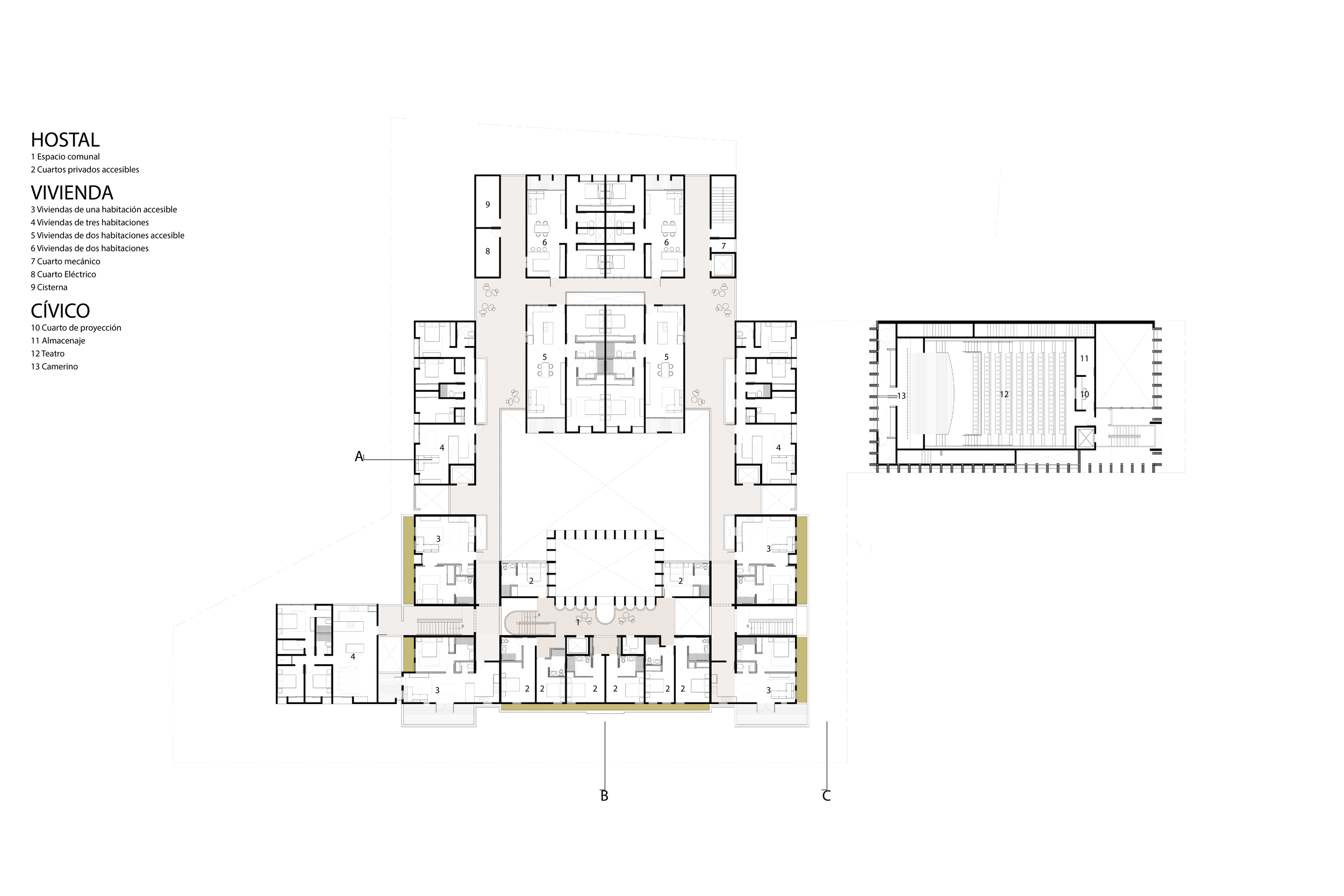
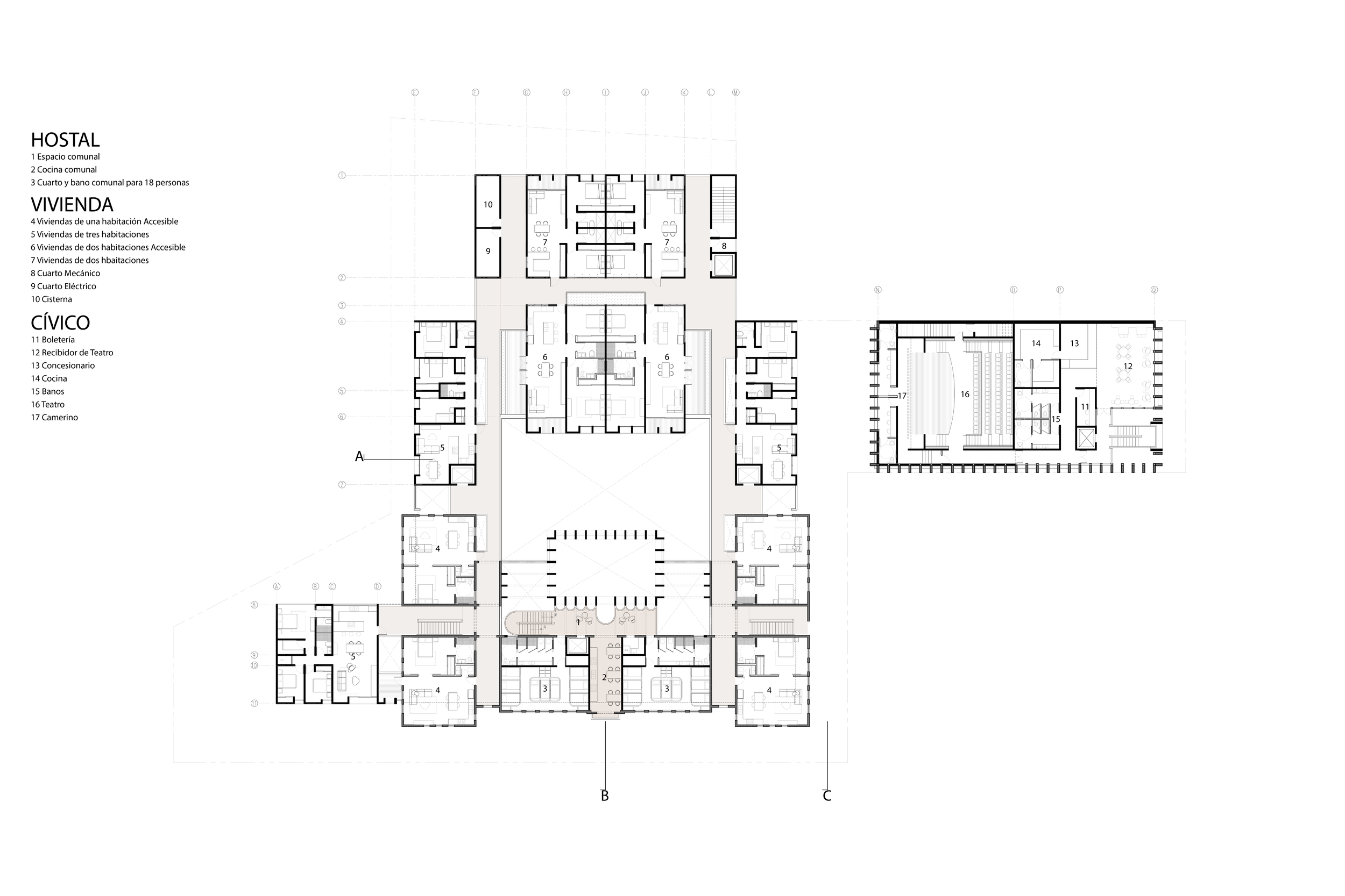
          Arcoasis is a proposal that seeks to conserve and revitalize the old Guillermo Godreau school building, giving access to a new hostel, residences, and civic/cultural spaces. With this, densification and new entertainment spaces will be available to the existing and new community.

Axonometric

Technical Drawings

Previous
Previous

Old New Rio

Next
Next

Miramar Loft